• Локация

    Район Домодедово — современный посёлок с единым архитектурным стилем и благоустроенной территорией.

    Посёлок: Новое Ильинское
  • Назначение земли
    ИЖС, земля в собственности с возможностью постоянной регистрации.

  • Участок
    • Площадь — 6,1 сотки
    • Ровный, правильной формы, сухой
    • Удобный подъезд — широкая асфальтированная дорога до участка
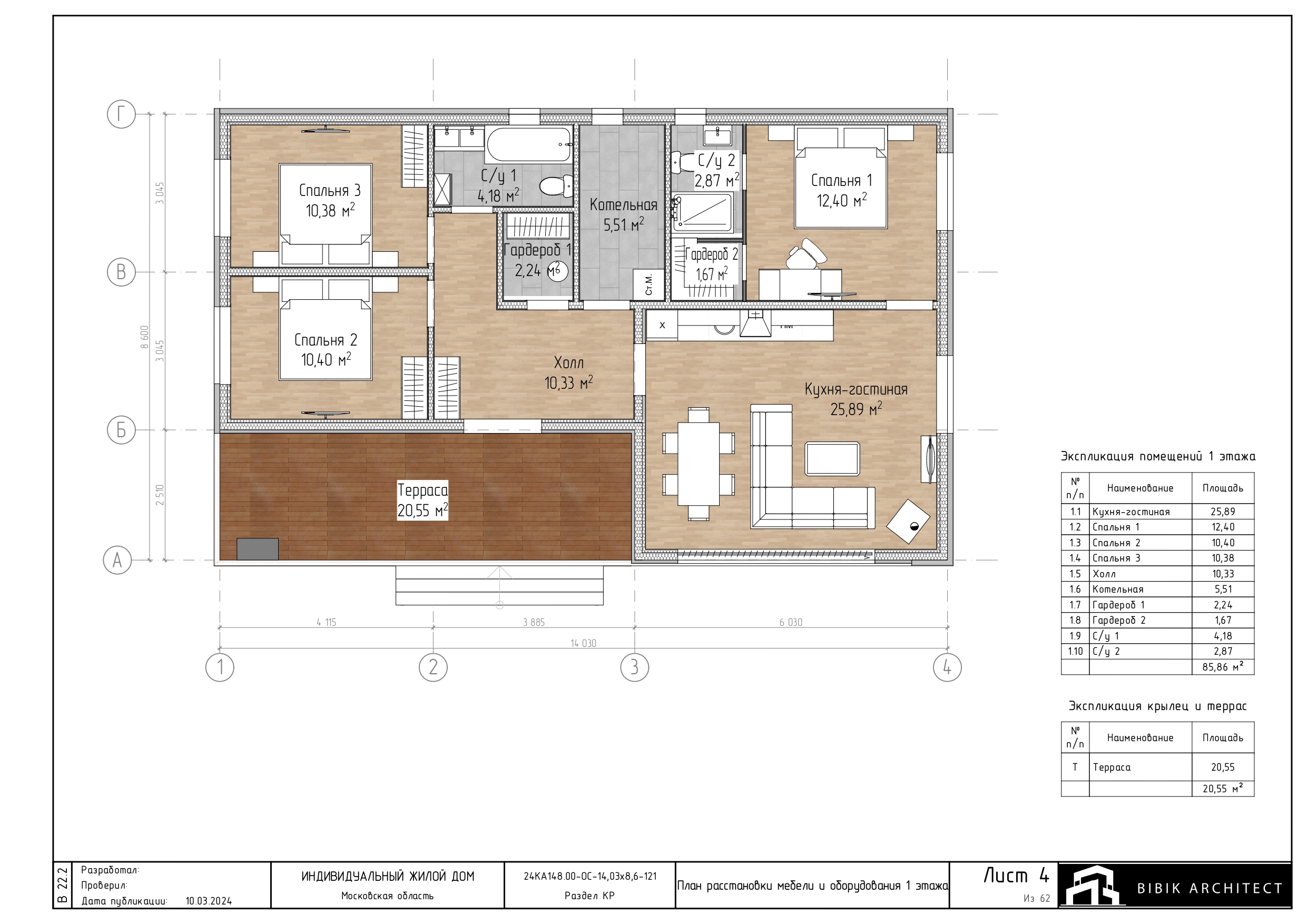
  • Дом: 120 м²

    Классический каркасный дом с продуманной архитектурой, утеплением по контуру и террасой 21 м — для жизни без компромиссов.

  • Конструкция и утепление
    • Каркас усиленного типа, ветро- и гидрозащита
    • Утепление перекрытий, стен и кровли — от 150 до 200 мм минеральной ваты
    • Отделка фасада: строганный деревянный массив хвойных пород
    • Кровля — клик‑фальц или профнастил
  • Окна и двери
    • Металлопластиковые окна со стеклопакетами и Roto‑фурнитурой
    • Входная дверь — тёплая, с терморазрывом и ламинацией по RAL
  • Коммуникации
    • Электричество — 15 кВт (по федеральной программе)
    • Асфальт до участка и твёрдое покрытие внутри поселка
    • Река Рожайка — в 20 минутах ходьбы
    • Инфраструктура: ТЦ 3 500 м², пункты Ozon и Wildberries, продуктовый магазин — всё рядом
    • Образование: частная школа в 5 минутах, общеобразовательная — строится в Судаково

ПЛАН ДОМА

ФАСАД ДОМА

Дом Хайтек 120м на участке 6 соток
Дом Хайтек 120м на участке 6 соток
Дом Хайтек 120м на участке 6 соток
Дом Хайтек 120м на участке 6 соток
image

Подберём дом вашей мечты

Наши специалисты помогут определиться.

При нажатии на кнопку “Отправить”, Вы даёте согласие на обработку персональных данных

Подготовили для вас тест, точно определяющий самый подходящий дом с учетом многих Ваших потребностей

пройти тест
brand-icon brand-icon brand-icon brand-icon brand-icon brand-icon brand-icon

Калькулятор ипотеки

arrow-icon
  • Судаково Лайф
  • Красное Озеро
  • Новое Судаково
  • Южное Судаково
  • Губернский Лес
  • Новое Привалово
  • Екатеринино
  • Маринино
  • Дианино
arrow-icon
  • Семейная ипотека
  • Ипотека с господдержкой для семей с детьми
  • Покупка дома с земельным участком
  • Ипотека для IT-специалистов
  • Готовый дом
  • На строительство дома
  • Сельская ипотека
  • Военная ипотека
arrow-icon
  • Сбер
  • ПСБ
  • Т-Банк
  • Альфа банк
  • ВТБ
  • Альфа-Банк
  • Банк ДОМ.РФ
  • Ак Барс Банк
  • Ингосстрах Банк
  • Банк Жилищного Финансирования
  • ЮниКредит Банк
  • МТС Банк
  • РостФинанс
  • Фора-Банк
  • Московский кредитный банк (МКБ)
  • Металлинвестбанк
  • Уралсиб
  • Газпромбанк
  • Абсолют Банк
  • Россельхозбанк
  • Совкомбанк

Результаты рассчетов

Приведенные расчеты носят предварительный характер. Окончательный расчет суммы кредита и рассрочки, размер ежемесячного платежа производятся после предоставления комплекта документов.

advantages-icon БЫСТРОЕ ОФОРМЛЕНИЕ
advantages-icon СРОКОМ ДО 3 ЛЕТ
advantages-icon РАСШИРЕННЫЕ ВОЗМОЖНОСТИ

Калькулятор рассрочки

arrow-icon
  • Судаково Лайф
  • КП Бородино
  • Зыковские дали
  • Васькино Парк
  • Васькино ИЖС
  • Новое Тургенево
  • Берег
  • Еловый Бор
  • Ивановка ИЖС
  • Красное Озеро
  • Новое Ильинское
  • Ильинский Лес
  • Верхнее Ильинское
  • Новое Судаково
  • Южное Судаково
  • Губернский Лес
  • Покров Парк
  • Ходаевские Дачи
  • Новое Привалово
  • Торбеево ИЖС
  • Екатеринино
  • Маринино
  • Якшино Лайт
  • Якшино Лайт 2
  • Бережки Парк
  • Дианино
  • Поселок Зеландия

Результаты рассчетов

Приведенные расчеты носят предварительный характер. Окончательный расчет суммы кредита и рассрочки, размер ежемесячного платежа производятся после предоставления комплекта документов.

ЧАСТО ЗАДАВАЕМЫЕ ВОПРОСЫ

  • ИЖС vs дачное строительство

    Коротко: ИЖС — земля в границах населённого пункта под один жилой дом с правом прописки и адресом; правила строже, банкам проще выдавать ипотеку, чаще развита инфраструктура. Дачное (ТСН) — гибче по назначению и требованиям, чаще локальные коммуникации; прописка возможна после признания дома жилым и присвоения адреса.

    Главные отличия в одном сравнении

    Критерий ИЖС (индивидуальное жилищное строительство) Садоводство / «дачное строительство»
    Категория/статус Земли населённых пунктов, ВРИ: ИЖС Садоводство; ВРИ: для садоводства
    Назначение дома Индивидуальный жилой дом для одной семьи Садовый дом (сезонное проживание) или перевод в жилой
    Прописка и адрес Адрес и регистрация по месту жительства доступны после регистрации дома Прописка возможна после признания дома жилым и присвоения адреса
    Строительные нормы Строже: ПЗЗ, отступы, высота (обычно ≤3 эт. и ~≤20 м), процент застройки Гибче, но тоже по ПЗЗ/ЗОУИТ; капитальные объекты соблюдают отступы
    Коммуникации Чаще централизованные (электро, газ при наличии сетей, ливнёвка, дороги, свет) Чаще локальные решения (скважина/септик); электричество — по ТУ; газ — по ситуации
    Ипотека/финансы Банкам проще: больше программ, ниже первоначальный взнос/ставка Есть программы «загородной ипотеки», но условия обычно строже
    Уведомления и регистрация Уведомительный порядок (начало/завершение) + техплан → ЕГРН То же для садового/жилого дома; упрощёнка («дачная амнистия») до 01.03.2031 при условиях
    УК/платежи Эксплуатационные платежи: дороги, свет, охрана, вывоз Взносы ТСН: членские/целевые, обслуживание инфраструктуры товарищества
    Ликвидность Обычно выше при развитой инфраструктуре и логистике Сильнее зависит от конкретного ТСН и окружения

    Когда выбирать ИЖС

    • Планируете постоянное проживание, важны адрес и прописка «по умолчанию».
    • Нужны школы/сады/медицина рядом и готовые дороги/освещение.
    • Рассматриваете ипотеку — больше банковских программ и предсказуемые требования.

    Когда подходит дачное строительство

    • Нужна гибкость по бюджету/площадям и нет жёстких требований к городской инфраструктуре.
    • Готовы использовать локальные коммуникации (скважина/септик) и принимать правила товарищества ТСН.
    • Прописка не критична или вы готовы перевести дом в жилой и оформить адрес.

    Правовые и технические нюансы

    • ПЗЗ и ЗОУИТ: и в ИЖС, и в садоводстве действуют ограничения (водоохранные, приаэродромные, охранные зоны сетей и т.п.). Проверяйте до проектирования.
    • Отступы и высота: значения различаются по муниципалитетам и зонам; ориентируйтесь на ваши ПЗЗ.
    • Коммерция: на ИЖС — дом для одной семьи; магазины/мастерские требуют соответствующего ВРИ/зоны.

    Коммуникации и эксплуатация

    • Электричество: техприсоединение по ТУ в обоих случаях; мощность и точка присоединения зависят от сетей.
    • Газ: в ИЖС чаще встречается централизованный газ (но не гарантирован); в ТСН — по ситуации, часто автономные решения.
    • Вода/канализация: в ИЖС возможна централизованная сеть; в ТСН обычно скважина/септик.
    • Платежи: в ИЖС — эксплуатационные (дороги, свет, мусор, охрана по договору/УК), в ТСН — членские/целевые взносы, решения собрания.

    Налоги и регистрация

    • Налоги на землю и дом зависят от кадастровой стоимости и местных ставок, а не только от типа (ИЖС/дачное).
    • Регистрация дома: уведомительный порядок для нового строительства; упрощёнка («дачная амнистия») — для уже построенных домов при соблюдении условий.

    Типичные ошибки

    • Покупка участка без проверки ПЗЗ/ЗОУИТ → несоответствие отступам/высоте.
    • Расчёт подключения «по слухам» → завышенные ожидания по газу/мощности.
    • Ориентация только на цену, без оценки дорог, ливнёвки, соседней застройки и платежей ТСН/УК.

    Короткий чек-лист выбора

    1. Определите сценарий: ПМЖ (ИЖС) или дача (с опцией перевода дома в жилой).
    2. Проверьте ПЗЗ/ЗОУИТ, ВРИ и границы по ЕГРН.
    3. Оцените коммуникации: электричество (ТУ/мощность), газ (стадия/возможность), вода/канализация, интернет.
    4. Посчитайте бюджет: участок + подключение + старт стройки + эксплуатационные/членские платежи.
    5. Проведите выезд: дороги, рельеф, соседи, шум, экология.

    Обновлено: 15.08.2025. Информация носит общий характер. Конкретные регламенты, платежи и доступность коммуникаций зависят от муниципалитета, ТСН и сетевых организаций.

  • Как подключить электричество к участку

    Коротко: подаёте заявку на техприсоединение в сетевую компанию, получаете ТУ и договор, оплачиваете счёт. Сети выполняют работы до границы участка, вы — готовите ввод и узел учёта. После осмотра и подписания актов заключаете договор энергосбыта — подают напряжение. Срок обычно 15–90 дней (зависит от мощности, загрузки сетей и сезона).

    Кто за что отвечает

    • Сетевая организация — строительство/модернизация линии до точки присоединения (границы участка/опоры), выдача ТУ, проверка выполнения.
    • Собственник участка — подготовка ввода на участке: щит (ВРУ), заземление, кабель от границы до щита, счётчик (если не ставит сетевая), внутренние сети.
    • Энергосбыт — договор энергоснабжения, расчёты, тарифы, учёт электроэнергии.

    Пошагово: стандартная схема техприсоединения

    1. Заявка в сетевую организацию (через сайт/ЛК/офис):
      • Указываете адрес/кадастровый номер, желаемую мощность и напряжение (1-ф/3-ф), контактные данные.
      • Прикладываете документы на участок и паспорт заявителя.
    2. Получение ТУ и договора:
      • В ТУ прописаны: разрешённая мощность, точка присоединения, требования к узлу учёта, сроки.
      • Подписываете договор, оплачиваете счёт за техприсоединение (если предусмотрено).
    3. Работы со стороны сетей:
      • Строительство/реконструкция линии, установка опоры/КТП/ответвления до границы участка.
      • Назначение даты осмотра узла учёта.
    4. Работы со стороны собственника (выполняются параллельно):
      • Монтаж ВРУ: вводной автомат, УЗО/дифавтоматы по проекту, шины PE/N, заземляющее устройство.
      • Прокладка кабеля от границы участка до щита (тип и сечение — по ТУ/проекту).
      • Прибор учёта (если по ТУ обязан собственник): соответствующий классу точности/типу учёта (часто — двухзонный «день/ночь»), место установки — как указано в ТУ (на фасаде/в шкафу учёта).
    5. Осмотр и оформление актов:
      • Комиссия проверяет узел учёта и соответствие ТУ.
      • Подписываются: акт осмотра, акт выполнения ТУ, при необходимости — акт разграничения балансовой и эксплуатационной ответственности.
    6. Договор энергосбыта и подача напряжения:
      • Заключаете договор с энергосбытом, выбираете тариф/тип учёта.
      • Пломбировка счётчика (кто пломбирует — по региональным правилам) → включение.

    Документы:

    • Паспорт заявителя (и доверенность — если действует представитель).
    • Право на участок (выписка ЕГРН/договор).
    • Ситуационный план/схема расположения ВРУ (по запросу сетей).
    • После монтажа: паспорт счётчика, протоколы испытаний/замеров (если требуются по ТУ), фото узла учёта.

    Выбор параметров: мощность, фаза, тариф

    • Мощность: для большинства домов достаточно 15 кВт; при электрическом отоплении/насосах может понадобиться больше.
    • Напряжение: 1-ф (220 В) или 3-ф (400 В). Для мощных нагрузок и равномерного распределения — 3-ф.
    • Учёт: одно- или многотарифный (день/ночь/3 зоны). Для электроотопления выгоднее многотариф.
    • Понижающий тариф/электроотопление: оформляется отдельно через энергосбыт при выполнении условий (см. соответствующий FAQ).

    Сроки и стоимость

    • Сроки: обычно 15–90 дней от заявки до включения (реально зависит от мощности, удалённости точки присоединения, сезона и загрузки сетей).
    • Платежи: услуга техприсоединения (если предусмотрена), материалы и работы на участке (щит, кабель, заземление, счётчик), тарифы энергосбыта. Конкретные суммы зависят от региона и ТУ.

    Типовые схемы узла учёта

    • Фасадный/уличный шкаф учёта на границе участка (удобен для сетей/сбыта, часто требуется по ТУ).
    • Щит в доме + выносной шкаф учёта на фасаде/опоре — по проекту и требованиям сетей.

    Частые вопросы:

    • Автомат в щите меньше, чем мощность по ТУ — это ошибка? Не обязательно: номинал автомата подбирают по кабелю/проекту. Юридически значима мощность из ТУ/договора ТП.
    • Кто ставит счётчик? По региональным правилам — сетевая/сбытовая организация или собственник. Смотрите ТУ/договор и практику в вашем регионе.
    • Нужна 3-фаза вместо 1-ф? Запрашивайте в заявке; при изменении — перерасчёт ТУ. Иногда потребуется замена кабеля/щита.
    • Можно подключить «временно на стройку»? Да, оформляют временную схему/щит СИП с учётом требований сетей; позже переводят на постоянную схему.
    • Как увеличить мощность позже? Подаётся заявка на увеличение в сети → новые ТУ → выполнение работ → акты.

    Типичные ошибки и как их избежать

    • Монтаж щита не по ТУ (не тот класс счётчика, отсутствие заземления, неверное место) → повторный выезд и задержка.
    • Сечение кабеля/номиналы автоматов не соответствуют заявленной мощности → ограничение по току.
    • Отсутствуют документы на узел учёта (паспорт счётчика, маркировка, пломбы) → замечания при приёмке.

    Мини-чек-лист собственника

    1. Подал заявку → получил ТУ/договор, оплатил.
    2. Согласовал схему ВРУ/место счётчика, смонтировал щит и заземление.
    3. Подготовил кабель от границы участка до щита.
    4. Вызвал комиссию → подписал акты.
    5. Заключил договор энергосбыта → включение.

    Совет: пришлите менеджеру ТУ/схему щита и фото места установки — проверим соответствие требованиям сетей и подскажем, как ускорить приёмку.

  • Согласование с Росавиацией: нужно ли для ИЖС и когда требуются ограничения по высоте

    Коротко: для строительства индивидуального жилого или садового дома действует уведомительный порядок — отдельного согласования с Росавиацией, как правило, не требуется. Исключение — если участок попадает в приаэродромную территорию (ПАТ): там действуют ограничения по высоте и отдельные правила для «высоких» объектов. Перед началом работ проверьте, попадает ли ваш участок в ПАТ и какая максимальная высота допустима.

    Что изменилось и что это значит для ИЖС/садового дома

    • Строительство ИЖС/садового дома оформляется через уведомления (о начале и о завершении стройки) — без отдельного «разрешения» и без стандартного согласования с Росавиацией.
    • Однако территориальные ограничения остаются: в пределах приаэродромных территорий действуют поверхности ограничения препятствий, которые задают максимально допустимую высоту объекта.
    • Если планируемая высота дома или временных сооружений (например, строительного крана) может превысить допуски, может потребоваться согласование как потенциального препятствия с эксплуатантом аэродрома/уполномоченным органом.

    Как понять, попадает ли участок в приаэродромную территорию

    1. Проверьте адрес/кадастровый номер на официальных картах муниципалитета/региона (ГИС) и в ПЗЗ — обычно ПАТ и зоны ограничений отмечены отдельными слоями/графикой.
    2. Запросите в администрации/градостроительном отделе информацию о зонах с особыми условиями использования (ЗОУИТ) для вашего участка — туда входят ПАТ, водоохранные, санитарные зоны и т.д.
    3. При необходимости направьте запрос эксплуатанту ближайшего аэродрома или в профильный департамент — вам подскажут допустимые высоты и порядок согласования «высоких» объектов.

    Если участок в ПАТ: что проверить перед проектированием

    • Расчётную высоту дома (конёк кровли) — в метрах от уровня земли на участке.
    • Отметку рельефа (абсолютную высоту) — чтобы определить суммарную высоту над уровнем моря (иногда это важно для расчёта ограничений).
    • Временные сооружения на стройке: башенные краны, мачты, антенны — они тоже могут считаться препятствиями.

    Когда может потребоваться согласование/уведомление как «препятствия»

    • Если планируемая высота дома или временных конструкций превышает лимиты для вашего участка в ПАТ.
    • При размещении мачт, антенн, дымовых труб, башенных кранов определённой высоты.
    • Вблизи глиссады или в секторах со строгими высотными ограничениями.

    Порядок действий в ПАТ (если объект высокий)

    1. Соберите исходные данные: координаты, высоту рельефа, предлагаемую высоту объекта (отметка конька/мачты), сроки монтажа/работ.
    2. Обратитесь к эксплуатанту аэродрома/уполномоченному органу за оценкой соответствия поверхностям ограничения препятствий.
    3. При необходимости получите заключение/согласование или скорректируйте проект (снизьте высоту, измените место установки временных конструкций).
    4. Далее действуйте в общем порядке: уведомление о начале строительства → строительство → уведомление о завершении → учёт и регистрация.

    Частые вопросы

    • Для типового дома 2–3 этажа согласование не нужно? Обычно нет, если высота не превышает лимиты ПАТ. Но вблизи ВПП/глиссады ограничения строже — проверьте заранее.
    • Кран выше дома — это проблема? Может быть. Башенный кран иногда превышает допустимые высоты, его установка/сроки работ могут потребовать согласования как временного препятствия.
    • Дом ниже лимита, но хочу мачту под интернет/антенну. Мачта считается самостоятельным объектом — проверьте её высоту относительно допустимого порога.
    • Куда обращаться, если не уверены? В архитектуру/градостроительный отдел администрации, к эксплуатанту ближайшего аэродрома или к нашему менеджеру — поможем запросить данные.

    Советы перед подачей уведомления

    • Сверьте ПЗЗ, ЗОУИТ и ПАТ по вашему участку.
    • Зафиксируйте в эскизе планируемую высоту дома (конёк) и привязку к рельефу.
    • Если планируете краны/мачты — заранее уточните их высоту и порядок использования.

    Итог: для ИЖС и садовых домов отдельное согласование с Росавиацией обычно не требуется, но в приаэродромных территориях соблюдайте высотные ограничения. Проверяйте ПАТ/ЗОУИТ заранее и, при необходимости, согласовывайте «высокие» объекты или временные конструкции.

    Обновлено: 15.08.2025. Информация носит общий характер и не заменяет официальные разъяснения. Конкретные требования зависят от аэродрома, ПЗЗ и актуальных нормативов муниципалитета/региона.

  • Уведомление о начале строительства (ИЖС/садовый дом): как подать и что проверить

    Коротко: вместо разрешения на строительство действует уведомительный порядок. Подаёте уведомление о начале строительства, возводите дом в рамках норм (как правило: ≤ 3 этажа, ≤ ~20 м, один жилой дом для одной семьи, соблюдены отступы), затем подаёте уведомление о завершении и техплан → объект ставится на кадастровый учёт и регистрируется право.

    Кому подходит уведомительный порядок

    • ИЖС (индивидуальный жилой дом) на землях населённых пунктов с соответствующим ВРИ.
    • Садовый дом на землях для садоводства.

    Ограничения: дом для одной семьи, обычно до 3 этажей и примерно до 20 м по ПЗЗ; параметры и отступы зависят от муниципальных регламентов.

    Что проверить перед подачей уведомления

    1. ПЗЗ и ВРИ: зона, допустимость ИЖС/садового дома, отступы, высота/этажность, процент застройки.
    2. ЗОУИТ/ограничения: водоохранные, санитарные, охранные зоны ЛЭП/газопроводов, приаэродромные территории (высотные лимиты).
    3. Границы участка: по ЕГРН/межеванию, отсутствие пересечений с красными линиями и сервитутами.

    Уведомление о начале строительства — что подаём

    Подача через администрацию, МФЦ или Госуслуги. Обычно прикладывают:

    • Право на участок (выписка ЕГРН/акт/договор).
    • Схему планируемого размещения дома на участке с указанием отступов и пятна застройки.
    • Описание параметров: назначение (жилой/садовый), этажность, ориентировочная высота конька, габариты.
    • Реквизиты застройщика (паспорт/учредительные документы).

    ГПЗУ: для ИЖС не всегда обязателен, но помогает видеть красные линии и ограничения в одном документе — уточните требования в вашем муниципалитете.

    Сроки и результат рассмотрения

    • Администрация проверяет соответствие ПЗЗ/ЗОУИТ и направляет ответ (обычно в короткие сроки по регламенту).
    • Если всё корректно — вы получаете уведомление о соответствии и можете приступать к строительству.
    • Если есть несоответствия — направят мотивированный отказ/замечания (исправляете схему/параметры и подаёте повторно).

    Строительство: что важно соблюдать

    • Строим в заявленных параметрах (этажность, высота, пятно застройки, отступы).
    • Учитываем инженерные сети и их охранные зоны (ЛЭП, газ, вода, связь).
    • В приаэродромных территориях — не превышаем высотные ограничения; временные краны/мачты тоже считают препятствиями.

    Уведомление о завершении строительства и регистрация

    1. Техплан у кадастрового инженера (на основе обмеров и прав на землю).
    2. Уведомление о завершении + техплан → подача через администрацию/МФЦ/онлайн.
    3. Кадастровый учёт дома и регистрация права в Росреестре (обычно 5–12 рабочих дней после подачи).
    4. Адрес и прописка: присваиваются по процедурам муниципалитета после регистрации дома как жилого.

    Частые вопросы и нюансы

    • Можно начать строить без уведомления? Нельзя — уведомление о начале подают до старта работ.
    • Изменились параметры дома в процессе? Если существенные (отступы/высота/пятно) — готовьте корректировку и уведомляйте администрацию.
    • Что с хозпостройками/гаражом? Зависит от ПЗЗ/статуса объекта (капитальный/неконструктивный). Капитальные объекты требуют соблюдения отступов и могут потребовать уведомления.
    • Дом выше лимита? В ПАТ и ЗОУИТ действуют ограничения. Либо уменьшайте высоту, либо запрашивайте согласование (если это допускается).
    • Можно ли дистанционно? Да, многие муниципалитеты принимают через Госуслуги; итоговые документы приходят в электронном виде.

    Мини-чек-лист застройщика

    1. Проверил ПЗЗ, ВРИ, ЗОУИТ, красные линии.
    2. Подготовил схему размещения дома и параметры (этажность, высота, отступы).
    3. Подал уведомление о начале → получил подтверждение.
    4. Построил в рамках регламентов → заказал техплан.
    5. Подал уведомление о завершении → учёт и регистрация права.

    Совет: пришлите менеджеру адрес/кадастровый номер и эскиз дома — проверим соответствие ПЗЗ, отметим риски по ЗОУИТ и поможем собрать пакет на уведомления.

    Обновлено: 15.08.2025. Информация носит общий характер; конкретные требования и сроки зависят от муниципалитета и действующих регламентов Росреестра/МФЦ.

  • Проект «под отделку»: состав работ и ориентировочные сроки

    Коротко: «под отделку» — это дом с готовым коробом, кровлей, окнами/входной дверью и выполненной черновой инженерией (электрика, водоснабжение, отопление по проекту), без чистовых материалов и сантехники. После этого этапа можно переходить к чистовой отделке и меблировке. Точный состав — по смете и договору.

    Что обычно входит в «под отделку»

    • Основание и коробка: фундамент (тип по проекту), несущие стены/перекрытия, внутренние перегородки.
    • Кровля: стропильная система, утепление/паро- и гидроизоляция по проекту, кровельное покрытие.
    • Окна и входная дверь: монтаж светопрозрачных конструкций, отливы, базовые подоконники (по проекту).
    • Черновая инженерия:
      • Электрика — ввод, щит, кабельные трассы, монтаж подрозетников/распаячных коробок.
      • Отопление — магистрали, радиаторы/коллектор (если предусмотрено), подготовка под котельную.
      • Водоснабжение и канализация — вводные точки, прокладка труб, выводы под сантехнику.
      • Вентиляция — базовые каналы/выводы (по проекту).
    • Черновые поверхности: штукатурка/шпатлёвка стен (или ГКЛ), стяжка пола/выравнивание оснований.
    • Фасад (база): ветро-влагозащита, утепление/черновая отделка или подготовка под чистовой слой (по проекту).
    • Документация: смета, график, акты скрытых работ, исполнительная документация по инженерам.

    Что обычно не входит

    • Чистовые материалы: краска/обои, плитка, напольные покрытия, плинтуса.
    • Межкомнатные двери, лестницы с чистовой отделкой, встроенная мебель/кухня.
    • Сантехника и светильники, розетки/выключатели (если не оговорено отдельно).
    • Ландшафт, отмостка/дорожки/террасы, заборы, парковочные места.
    • Наружные сети «под ключ» (скважина, септик, газ, оптика) — при необходимости оформляются отдельным договором.

    Ориентировочные сроки

    Как правило: 3–6 месяцев от старта работ до готовности «под отделку» (зависит от площади, сложности проекта, сезона и готовности внешних коммуникаций).

    Этапы работ

    1. Проектирование и подготовка: геология/топосъёмка, рабочий проект, смета, график.
    2. Фундамент: устройство основания, гидроизоляция, техническая приёмка.
    3. Коробка: стены/перекрытия/кровля, окно-дверные проёмы.
    4. Окна/входная дверь: установка, герметизация, приточные элементы (по проекту).
    5. Черновая инженерия: электрика, отопление, ВК, вентиляция — разводка и испытания.
    6. Черновые поверхности: штукатурка, стяжки, подготовка под чистовую.
    7. Сдача этапа: акты скрытых работ, исполнительная документация, чек-лист готовности к чистовой отделке.

    Опции и апгрейды (по желанию)

    • «Предчистовая» с установленными розетками/выключателями и грунтом/финишной шпаклёвкой.
    • «Тёплый пол» (водяной/электрический), котёл/бойлер, система очистки воды.
    • Чистовой фасад (штукатурка/сайдинг/фиброцемент/кирпич) и подшивка свесов.
    • Наружные сети «под ключ»: скважина, септик, подключение газа/оптики.
    • Система «умный дом», расширенная вентиляция/рекуперация.

    Гарантии и контроль качества

    • Гарантийные обязательства — согласно договору подряда (сроки по конструктиву/инженерии фиксируются в договоре).
    • Фото/видеофиксация ключевых этапов, акты скрытых работ, авторский/технадзор — по согласованию.

    Итог: что вы получаете на выходе

    Дом готов к чистовым работам: геометрия и «мокрые» процессы завершены, инженерия разведена и опрессована, база под финишные покрытия подготовлена. Дальше — выбор материалов и установка сантехники/света/дверей.

    Обновлено: 15.08.2025. Формат «под отделку» может отличаться в зависимости от проекта и фиксируется в смете/договоре. Сроки носят ориентировочный характер и зависят от погодных условий, логистики и объёма работ.

  • Правила землепользования и застройки (ПЗЗ): что это и как ими пользоваться

    Коротко: ПЗЗ — это муниципальные правила, которые определяют территориальные зоны, допустимые виды разрешённого использования (ВРИ), параметры застройки (отступы, высота, плотность) и ограничения (ЗОУИТ, красные линии, охранные зоны). Перед покупкой и проектированием нужно сверить конкретный участок с ПЗЗ по его адресу/кадастровому номеру.

    Что такое ПЗЗ

    • Нормативный документ муниципалитета: устанавливает правила использования земли и застройки в границах города/посёлка/района.
    • Цель: обеспечить безопасную и устойчивую застройку: где можно строить, что именно и каких размеров.
    • Применимость: для ИЖС, садовых домов, коммерческих объектов — у каждой зоны свои допуски и ограничения.

    Что содержат ПЗЗ

    • Карту территориального зонирования (например: Ж — жилые зоны, ОД — общественно-деловые, Р — рекреация и т.д.).
    • Перечень ВРИ для каждой зоны (что разрешено, условно разрешено или запрещено).
    • Градостроительные регламенты: максимальная высота/этажность, отступы от границ участка/красных линий, процент застройки, минимальный размер участка.
    • Зоны с особыми условиями использования территории (ЗОУИТ): водоохранные, санитарно-защитные (СЗЗ), охранные зоны ЛЭП/газопроводов, приаэродромные территории и др.
    • Красные линии улиц и проездов, сервитуты и иные ограничения, влияющие на размещение дома и забора.

    Где посмотреть ПЗЗ по вашему участку

    • На сайте администрации (раздел «Градостроительство/ПЗЗ») — текст правил + карты зон.
    • Муниципальная/региональная ГИС-карта — поиск по адресу/кадастровому номеру с отображением зоны и ограничений.
    • Через МФЦ/запросом — получить выписку/фрагмент карты для конкретного участка.
    • У нас — по выбранному лоту предоставим сведения о зоне, ВРИ и ключевых регламентах.

    Как сверить участок с ПЗЗ (пошагово)

    1. Найдите территориальную зону вашего участка по карте (например, Ж-1/Ж-2 и т.п.).
    2. Проверьте ВРИ: допустим ли ИЖС/садовый дом/то, что планируете строить.
    3. Сверьте регламенты: максимальная высота/этажность, отступы от границ, процент застройки, минимальный размер участка.
    4. Посмотрите ЗОУИТ: есть ли водоохранная, санитарная, охранная зона ЛЭП/газопровода, приаэродромная территория, береговая линия и др.
    5. Проверьте красные линии и сервитуты — дом и забор не должны заходить в эти полосы.

    Ключевые параметры, на которые смотрят чаще всего

    • Отступы (минимальные расстояния) от передней/боковых/задней границ участка и от красных линий.
    • Высота и этажность (для ИЖС обычно до 3 этажей и до ~20 м, но ориентируйтесь на ваши ПЗЗ).
    • Плотность/процент застройки — доля участка, которую можно занять домом/хозяйственными постройками.
    • Минимальная площадь участка и допустимое деление/объединение.

    Особые зоны и ограничения (ЗОУИТ)

    • Водоохранные зоны/прибрежная полоса — ограничения по строительству и благоустройству у воды.
    • Санитарно-защитные зоны (СЗЗ) — вокруг предприятий, дорог, свалок и т.п.
    • Охранные зоны коммуникаций — ЛЭП, газопроводы, линии связи (требуют отступов/согласований).
    • Приаэродромные территории — ограничения по высоте и активности.
    • Зоны охраны ОКН — требования к внешнему виду/высоте в исторических территориях.

    Если ваши планы не совпадают с ПЗЗ

    • Адаптируйте проект под допустимые параметры (отступы, высота, пятно застройки).
    • Инициируйте условно разрешённый вид использования (если ПЗЗ это предусматривают) или рассмотрите изменение ВРИ/зоны — это длительная процедура и не всегда возможна.
    • Рассмотрите иной участок, где ПЗЗ позволяют задуманную архитектуру/функцию.

    Документы для старта строительства (ИЖС/садовый дом)

    1. Проверка ПЗЗ и ЗОУИТ по участку.
    2. Уведомление о начале строительства (через администрацию/МФЦ/Госуслуги) с параметрами дома.
    3. Строительство в рамках регламентов.
    4. Техплан + уведомление о завершении → кадастровый учёт и регистрация права.

    Примечание: ГПЗУ для ИЖС не всегда обязателен, но помогает видеть ограничения и красные линии в одном документе — уточняйте требования в вашем муниципалитете.

    Типичные ошибки

    • Проектирование без учёта красных линий и охранных зон.
    • Игнорирование минимальных отступов и процента застройки.
    • Неправильная трактовка ВРИ (например, попытка разместить коммерцию в чисто жилой зоне).
    • Отсутствие проверки приаэродромных/водоохранных ограничений.

    Частые вопросы

    • Отступы и высота — «всегда одинаковые»? Нет, у каждого муниципалитета и зоны свои значения. Ориентируйтесь только на ваши ПЗЗ.
    • Можно ли «узаконить» дом, если он не проходит по ПЗЗ? Иногда — через изменения проекта/вида использования, но это непросто и не гарантировано.
    • ПЗЗ и СНиП/СП противоречат? Применяются оба блока норм: ПЗЗ задают «что и где», СП — «как строить» (технические требования).

    Совет: пришлите нам адрес/кадастровый номер — подготовим выписку из ПЗЗ по вашему участку, отметим ЗОУИТ и подскажем, какие параметры дома проходные без дополнительных согласований.

    Обновлено: 15.08.2025. ПЗЗ и регламенты различаются по муниципалитетам и периодически обновляются. Пользуйтесь актуальной редакцией и официальными картами зонирования.

  • Понижающий тариф: кто может получить и как оформить (актуальные правила)

    Коротко: понижающий тариф на электроэнергию для частных домов обычно доступен, когда основное отопление — электрическое (электрокотёл), установлена электроплита, дом зарегистрирован как жилой и подключён по нормативам энергокомпании. Оформление — через ваш энергосбыт/сетевую организацию, с установкой подходящего счётчика и подачей пакета документов. Правила отличаются по регионам — ориентируйтесь на действующие условия вашего поставщика.

    Кто обычно имеет право на понижающий тариф

    • Жилой дом (ИЖС) с зарегистрированным правом и адресом.
    • Электроотопление как основной источник тепла (электрокотёл, тепловой насос; иногда — тёплые полы как часть системы).
    • Электроплита (частое требование энергосбыта).
    • Отсутствие действующего газового отопления (в ряде регионов — отсутствие ввода газа в дом).
    • Счётчик, поддерживающий нужный тип учёта (часто многотарифный/двухзонный «день/ночь»).

    Важно: точный перечень условий и название тарифа (например, «для домов с электроотоплением», «многотарифный учёт» и т.п.) устанавливает ваш региональный регулятор и энергосбытовая компания.

    Что даёт понижающий тариф

    • Сниженную стоимость электроэнергии при соблюдении условий (или более низкую «ночную» ставку при двухзонном учёте).
    • Возможность существенно экономить при электрическом отоплении и использовании тепловых насосов.

    Как оформить:

    1. Проверить условия на сайте своего энергосбыта/в офисе: требования к дому, оборудованию, счётчику.
    2. Подготовить документы:
      • Паспорт, СНИЛС (по запросу).
      • Право собственности/выписка ЕГРН на дом и участок.
      • Техпаспорт/декларация на дом (при наличии), адрес.
      • Акты/фото установленного электрокотла/теплового насоса и электроплиты (по требованиям).
      • Договор энергоснабжения, ТУ/договор техприсоединения (для подтверждения мощности).
    3. Заявление в энергосбыт/через ЛК: просьба о переводе на соответствующий тариф/вид учёта.
    4. Счётчик: установка/замена на многотарифный (если требуется), опломбировка и ввод в эксплуатацию.
    5. Проверка оборудования и документов специалистом энергосбыта/сетевой компании.
    6. Перевод на тариф и перерасчёт по выбранной схеме учёта начиная с указанной даты.

    Технические требования (типовые)

    • Счётчик с поддержкой нужного профиля (двухзонный), класс точности по правилам энергосбыта.
    • Соответствие вводного автомата и мощности параметрам ТУ/договора техприсоединения.
    • Правильная схема подключения и заземления; доступность узла учёта для осмотра.

    Сроки и расходы

    • Сроки рассмотрения заявления и перевода на тариф — обычно от нескольких дней до 2–3 недель (зависит от компании и загрузки).
    • Счётчик/монтаж — возможны расходы на приобретение/установку, если не предусмотрено бесплатной заменой по программе энергосбыта.

    Частые вопросы

    • Есть газ по улице — дадут ли тариф? Условия различаются: в ряде регионов наличие газоснабжения в доме исключает льготу. Уточняйте в энергосбыте.
    • Тепловой насос считается электроотоплением? Чаще всего — да, но запросите подтверждение в энергосбыте (потребуются документы на оборудование).
    • Комбинированное отопление (электричество + печь)? Допустимо не всегда. Важен статус «основного» источника — уточняйте правила.
    • Нужна ли электроплита? Во многих регионах — да. Требование обязательно проверяйте перед подачей.
    • Тариф круглогодичный или только в отопительный сезон? Зависит от условий поставщика: встречаются оба варианта.

    Обновлено: 15.08.2025. Информация носит общий характер и может отличаться в зависимости от региона, сетевой и энергосбытовой организации. Конкретные условия, тарифы и перечень документов уточняйте у вашего поставщика электроэнергии.

  • Какая у меня подключённая мощность?

    Какая у меня подключённая мощность?

    Коротко: юридически значимая подключённая (разрешённая) мощность указана в ваших Технических условиях (ТУ) и/или договоре техприсоединения с сетевой организацией. Номинал вводного автомата в щите — лишь ориентир и не заменяет данные из ТУ/договора.

    Где смотреть «официальную» мощность

    • ТУ на техприсоединение — содержит разрешённую (максимальную) мощность, напряжение (1-ф/3-ф), точку присоединения, сроки.
    • Договор/заявка на техприсоединение — подтверждает параметры; вместе с ТУ является базой.
    • Акт выполнения ТУ — фиксирует, что подключение выполнено в заявленных параметрах.
    • Акт разграничения балансовой принадлежности — уточняет границу ответственности и иногда указывает параметры ввода.

    Пошагово: как проверить свою мощность

    1. Найдите ТУ и договор ТП (бумажные или в ЛК сетевой/энергосбыта). Ищите строки «разрешённая/максимальная мощность», «напряжение», «категория надёжности».
    2. Сверьте с Актом выполнения ТУ (если подписан) — он подтверждает фактические параметры присоединения.
    3. Проверьте тип учёта и счётчик (1-ф/3-ф, одно/многотарифный) — это косвенные признаки, не юридические.
    4. Посмотрите на вводной автомат — его номинал может быть ниже разрешённой мощности (подбирается под кабель/схему/проект).

    Почему номинал автомата — это не доказательство

    • Автомат выбирают по сечению кабеля и проектной схеме, а не только по величине разрешённой мощности.
    • Временное ограничение: автомат могут «занизить» до окончания внутренних работ или по желанию собственника.
    • Физическая реализация может отставать от ТУ: чтобы «добрать» мощность, иногда требуется замена кабеля/щита/автомата.

    Как прикинуть мощность по автомату (только ориентировочно!)

    Для порядка величин, без учёта cosφ и пусковых токов:

    • 1-фаза ≈ 220–230 В: P ≈ U × I → 32 А ≈ 7,0 кВт; 40 А ≈ 8,8–9,2 кВт; 50 А ≈ 11–11,5 кВт.
    • 3-фазы ≈ 400 В: P ≈ √3 × U × I → 16 А ≈ 11 кВт; 25 А ≈ 17 кВт; 32 А ≈ 22 кВт.

    Эти расчёты не подтверждают вашу разрешённую мощность — актуальны только документы (ТУ/договор/акты).

    Где посмотреть онлайн

    • Личный кабинет сетевой организации — раздел «Техприсоединение/договор».
    • Личный кабинет энергосбыта — иногда отображает параметры точки поставки (не всегда).

    Если мощности не хватает

    1. Подавайте заявку на увеличение мощности в сетевую компанию.
    2. Получите новые ТУ → при необходимости замените кабель/щит/автомат, возможно — переход на 3-ф.
    3. Подпишите акт выполнения ТУ → обновите данные в энергосбыте.

    Совет: храните комплект: ТУ, договор ТП, акт выполнения ТУ, акт разграничения. Это упростит продажу, подключение электроотопления и взаимодействие с энергосбытом.

    Обновлено: 15.08.2025. Информация носит общий характер и может отличаться по сетевой/региону. Юридически значимы сведения из ТУ/договора техприсоединения и подтверждающих актов.

  • Где смотреть актуальные тарифы электроэенергии по МО

    Коротко: актуальные тарифы на электроэнергию в Московской области публикует Комитет по ценам и тарифам МО (распоряжения и новости). Для бытовых клиентов удобно сверять значения на странице АО «Мосэнергосбыт» — Тарифы МО и рассчитывать платеж через тарифный калькулятор.

    Официальные источники

    Как проверить корректность тарифа

    1. Убедитесь, что выбран именно регион «Московская область» (не Москва) и верный тип населённого пункта (город/сельская местность).
    2. Проверьте свою категорию: обычная, с электроплитой, с электроотоплением/понижающим коэффициентом, многотарифный учёт (день/ночь/3 зоны).
    3. Сверьте дату вступления в силу (как правило, изменения происходят 1 января и/или 1 июля) и актуальный период действия.
    4. Для точного расчёта используйте тарифный калькулятор энергосбыта или свой Личный кабинет.

    Полезные примечания

    • Тарифы и дифференциация (день/ночь, 3 зоны) устанавливаются регулятором и могут меняться — всегда проверяйте свежий документ Комитета.
    • Спецусловия (электроплита, электроотопление, сельская местность) применяются при соблюдении требований энергосбыта и подтверждаются документально.
    • Если видите расхождения между разными сайтами — ориентируйтесь на последнее распоряжение Комитета по ценам и тарифам МО и новость на официальном ресурсе.

    Обновлено: 15.08.2025. Данная страница не содержит фиксированных значений тарифа. Актуальные цифры смотрите в распоряжениях Комитета по ценам и тарифам Московской области и на странице тарифов АО «Мосэнергосбыт».

  • Личный кабинет Мосэнергосбыт: регистрация, показания и оплата

    Коротко: зарегистрируйтесь в личном кабинете (сайт или приложение) по лицевому счёту и последней оплаченной сумме. Показания счётчика обычно принимаются с 15 по 26 число каждого месяца. Ниже — короткая инструкция и полезные ссылки.

    Где зарегистрироваться

    • Сайт: mosenergosbyt.ru → раздел «Личный кабинет».
    • Мобильное приложение: «Мосэнергосбыт» (App Store / Google Play).

    Что приготовить для регистрации

    • Лицевой счёт (Л/С) — указан в договоре/квитанции.
    • Сумма последнего платежа по этому Л/С (для привязки точки учёта).
    • Телефон/почта — для подтверждения входа и уведомлений.

    Быстрая инструкция

    1. Создайте аккаунт (телефон/почта + пароль) на сайте или в приложении.
    2. Добавьте лицевой счёт, укажите последнюю оплаченную сумму — система сверит данные и привяжет объект.
    3. Укажите тип счётчика (одно-/двух-/трёхтарифный) и текущие показания.
    4. Передавайте показания ежемесячно с 15 по 26 число и оплачивайте начисления в ЛК.

    Что можно делать в личном кабинете

    • Передавать показания и смотреть историю помесячно.
    • Оплачивать счета (банковские карты/автоплатёж), выгружать квитанции/акты.
    • Проверять тариф/группу учёта, начисления и перерасчёты.
    • Настроить уведомления: напоминания о показаниях, платежах, работах.

    Полезные советы

    • Если в счётчике несколько тарифов (Т1/Т2/Т3) — вводите все зоны, даже если в какой-то месяц они «нулевые».
    • Смена счётчика или его параметров (одно- ↔ многотарифный) оформляется через сетевую/сбытовую организацию — обновите данные в ЛК после замены.
    • При несоответствии начислений проверьте дату и корректность показаний; при необходимости откройте обращение прямо из ЛК.

    Частые вопросы

    • Не знаю сумму последнего платежа. Посмотрите квитанцию/банковскую выписку или используйте альтернативные способы подтверждения в ЛК (если доступны).
    • Не принимаются показания. Проверьте окно приёма (обычно 15–26 числа), тарифность счётчика и формат ввода (целая/дробная часть).
    • Ошибся в показаниях. Создайте обращение в ЛК и приложите фото счётчика с датой — корректировку сделает энергосбыт.
    • Как сменить тариф/оформить «ночной» учёт. Узел учёта должен поддерживать многотарифный режим; подайте заявку в энергосбыт и, при необходимости, замените счётчик.

    Важно: точные сроки приёма показаний, способы привязки Л/С и перечень функций личного кабинета могут меняться — ориентируйтесь на инструкции на сайте Мосэнергосбыт и в актуальной версии приложения.

    Обновлено: 15.08.2025. Информация носит общий характер и предназначена для удобства клиентов. Актуальные правила и регламенты — на официальных страницах Мосэнергосбыта.

  • Дачная амнистия (упрощённая регистрация): кто может воспользоваться и как оформить

    Коротко: «дачная амнистия» позволяет до 01.03.2031 зарегистрировать уже построенные жилые и садовые дома по упрощённой схеме — без предварительного уведомления о начале строительства. Нужны документы на землю и технический план дома от кадастрового инженера. Пакет подаётся через МФЦ/Росреестр/онлайн. Срок рассмотрения обычно 5–12 рабочих дней.

    Кому подходит «дачная амнистия»

    • Садовые дома на участках для садоводства (садоводческие товарищества и т.п.).
    • Индивидуальные жилые дома на землях населённых пунктов (ИЖС/ЖС), если дом уже построен и ранее уведомление не подавалось.

    Базовые условия

    • Земля оформлена в собственность/аренду и стоит на кадастровом учёте (есть выписка ЕГРН).
    • Дом капитальный (есть фундамент, стены, крыша; не времянка/не модуль без признаков капитальности).
    • Параметры не нарушают ПЗЗ и ЗОУИТ (отступы, высота, охранные зоны, приаэродромные ограничения и т.п.).
    • Дом предназначен для одной семьи (не многоквартирный, не таунхаусы с отдельными квартирами).

    Пошагово: как оформить по «амнистии»

    1. Проверить участок и дом на соответствие ПЗЗ/ЗОУИТ (отступы, высота, красные линии, охранные зоны).
    2. Заказать технический план у кадастрового инженера (понадобятся документы на землю, обмеры дома).
    3. Подать пакет через МФЦ/онлайн:
      • заявление;
      • паспорт заявителя;
      • право на земельный участок (выписка ЕГРН/правоустанавливающий документ);
      • техплан дома (электронный XML+ZIP и/или бумажный экземпляр — по регламенту приёма);
      • квитанция об уплате госпошлины.
    4. Дождаться решения Росреестра: постановка на кадастровый учёт дома и регистрация права собственности.
    5. При необходимости — присвоить адрес и оформить прописку (для жилого дома — по процедурам муниципалитета).

    Статус объекта: «садовый» vs «жилой» дом

    • Садовый дом — сезонное/временное проживание. Прописка в нём не оформляется. Можно перевести в «жилой» при соблюдении требований.
    • Жилой дом — постоянное проживание, адрес и прописка. Для перевода садового дома в жилой подают заявление о смене назначения с техзаключением (если требуется по местным правилам).

    Сроки и формат подачи

    • Срок рассмотрения пакета — обычно 5–12 рабочих дней (зависит от региона и способа подачи).
    • Подать можно через МФЦ или онлайн (при наличии КЭП и готового электронного техплана).

    Частые ситуации и как их решать

    • Дом стоит ближе к границе, чем разрешено ПЗЗ. Возможен отказ. Решения: перенос/перепланировка, уточнение границ участка, индивидуальные согласования (если предусмотрены) — оценивать по месту.
    • Участок не межеван/нет кадастрового номера. Сначала межевание и постановка земли на учёт, затем техплан дома.
    • Ошибки в сведениях (площадь, контур). Исправляются через кадастрового инженера (корректировка техплана/сведений) и повторная подача.
    • Нет адреса у участка/дома. После регистрации дома подайте заявление на присвоение адреса в муниципалитет.

    Важные ограничения

    • Срок действия упрощённого порядка — до 01.03.2031.
    • Многоквартирные дома/таунхаусы не подпадают под «амнистию» как ИЖС/садовые дома для одной семьи.
    • В приаэродромных, водоохранных, санитарно-защитных и иных ЗОУИТ действуют особые ограничения.

    Документы: чек-лист

    • Паспорт заявителя.
    • Право на землю (выписка ЕГРН/правоустанавливающий документ).
    • Технический план дома (электронный/бумажный, как требует пункт приёма).
    • Квитанция госпошлины.
    • При смене статуса «садовый → жилой» — заявление и необходимые заключения (по правилам муниципалитета).

    Частые вопросы:

    • Можно ли оформить дом без межевания земли? Обычно нет — сначала ставят на учёт участок (межевание), затем регистрируют дом.
    • Нужен ли проект? Для регистрации по «амнистии» достаточно техплана; проект — по желанию/для строительства.
    • Можно ли прописаться в садовом доме? Нет. Сначала перевод в статус «жилой дом», затем — адрес и регистрация по месту жительства.
    • Если дом построен после 2021 г. без уведомления — «амнистия» работает? Да, при соблюдении условий и до 01.03.2031, но параметры должны соответствовать ПЗЗ/ЗОУИТ.

    Совет: пришлите менеджеру адрес/кадастровый номер и фото дома — проверим ПЗЗ/ЗОУИТ, дадим перечень документов для техплана и поможем подать пакет в МФЦ/онлайн.

    Обновлено: 15.08.2025. Материал носит общий характер и не является юридической консультацией. Требования и сроки зависят от муниципалитета и регламентов Росреестра/МФЦ.

  • Могу ли я приобрести дом без участка в компании «Зембери»?

    Коротко: мы специализируемся на продаже земельных участков. Дом «отдельно» возможен в двух форматах: 1) строительство дома на вашем участке по договору подряда; 2) покупка готового дома в наших посёлках (если есть в наличии). Актуальный перечень готовых домов и условия — у менеджера.

    Вариант 1. Построим дом на вашем участке

    Подходит, если у вас уже есть оформленный участок.

    • Что нужно: выписка ЕГРН на землю, межевание/границы, ПЗЗ/ЗОУИТ по адресу, ТУ по электричеству (и иным сетям — при наличии), доступ для техники.
    • Процесс: бриф → подбор/адаптация проекта → смета и график → договор подряда → строительство по этапам (фундамент → коробка/кровля → инженерия → «под отделку»/«под ключ»).
    • Сроки (ориентиры): «коробка» ≈ 2–4 мес., «под отделку» ≈ 3–6 мес., «под ключ» ≈ 4–9 мес. Зависит от площади, технологии и сезона.
    • Документы на выходе: акты скрытых работ, исполнительная документация, паспорт материалов/оборудования, гарантийные обязательства.

    Вариант 2. Готовые дома в наших посёлках

    Подходит, если хотите въехать быстрее.

    • Статусы: «под отделку» или «под ключ»; коммуникации — согласно регламенту посёлка.
    • Что входит: дом на конкретном участке, договор и полный пакет правоустанавливающих документов.
    • Доступность: пул готовых домов ограничен и меняется — актуальный список и цены уточняйте у менеджера.

    Когда покупка «только дом, без земли» недоступна

    • Покупка домокомплекта без монтажа и без привязки к участку — как правило, не предлагается (если иное не указано в конкретном проекте).
    • Размещение дома, не соответствующее ПЗЗ/ЗОУИТ участка (отступы, высота, охранные зоны) — потребует корректировок проекта или выбора иного участка.

    Обновлено: 15.08.2025. Информация носит общий характер и может отличаться по конкретному проекту/посёлку. Актуальные предложения готовых домов и условия строительства уточняйте у менеджера.

  • Как узнать какой проект дома лучше всего подойдет для меня и моего участка?
    1. Вы можете воспользоваться удобным фильтром вверху страницы.
      • выберите сколько в вашем доме будет этажей
      • его площадь, если вам важно, чтобы дом не занимал всю площадь участка или наоборот не оказался меньше ваших ожиданий
      • количество спален

        Выбирать все параметры не обязательно. Далее нажмите подобрать и на странице останутся только те проекты домов, которые наилучшим образом подходят именно вам.

        У каждого дома вы можете увидеть дизайн экстерьера, а так же планировку, что поможет сделать правильный выбор.

    2. Вы можете позвонить нам по телефону +7 (495) 001-00-03 или заказать обратный звонок и мы поможем вам подобрать наиболее подходящий проект дома.
  • Что такое дачное строительство

    Коротко: «дачное строительство» — это бытовой термин для строительства садового дома и вспомогательных строений на участке для дачного строительства. По закону оформляется как строительство садового или жилого дома (после перевода). Правила задают ПЗЗ и зоны с особыми условиями. Прописка возможна после признания дома жилым и присвоения адреса.

    Определения и статус земли

    • Садовый земельный участок — предназначен для отдыха, выращивания растений и размещения садового дома и хозпостроек. Может находиться в границах населённого пункта или на землях сельхозназначения (с ВРИ «ведение садоводства»).
    • Садовый дом — строение для временного/сезонного проживания. По заявлению собственника может быть признан жилым домом (если соответствует требованиям), после чего возможна прописка.
    • СНТ/ТСН — форма самоорганизации собственников (товарищество): общие дороги, въезды, освещение, охрана, вывоз мусора и т.п. Финансируются за счёт членских/целевых взносов.

    Что можно строить

    • Садовый дом (или дом, который затем переведут в жилой).
    • Хозпостройки: баня, гараж/навес, сарай, теплица, мастерская, беседка (если разрешено ПЗЗ).
    • Благоустройство: забор, дорожки, парковка, ландшафт.

    Что нужно согласовать и соблюдать

    • ПЗЗ и ВРИ по адресу участка: отступы от границ, высота/этажность, процент застройки.
    • ЗОУИТ: водоохранные/санитарные/охранные зоны сетей, приаэродромные ограничения и др.
    • Правила СНТ/ТСН: въезд, строительство, подключение к общим сетям, режим тишины, взносы.

    Порядок строительства и регистрации

    1. Проверка участка: ЕГРН, ПЗЗ, ЗОУИТ, границы, подъезд.
    2. Старт строительства:
      • для нового дома — действует уведомительный порядок (уведомление о начале → строительство → техплан → уведомление о завершении);
      • для уже построенного дома — возможна упрощённая регистрация («дачная амнистия») до 01.03.2031 при соблюдении условий.
    3. Кадастровый учёт и право: подача техплана, госпошлина → выписка ЕГРН на дом.
    4. Присвоение адреса и (при необходимости) признание дома жилым → возможность прописки.

    Коммуникации на дачном участке

    • Электричество: техприсоединение по ТУ (иногда через инфраструктуру СНТ).
    • Вода/канализация: чаще локальные решения (скважина, септик/станция).
    • Газ: централизованный встречается не всегда; возможны альтернативы (электроотопление, СУГ).
    • Интернет/связь: мобильные операторы, радиоканалы, локальные провайдеры.

    Плюсы «дачного» формата

    • Доступный вход по бюджету и возможность поэтапного строительства.
    • Гибче регламенты по архитектуре и плотности (но ПЗЗ действуют всегда).
    • Можно быстро начать сезонную эксплуатацию (бытовка/баня/малый дом).

    На что обратить внимание

    • Для постоянной регистрации дом нужно признать жилым и получить адрес.
    • Уточняйте размер и периодичность взносов СНТ/ТСН, правила въезда/строительства.
    • Проверьте дороги и водоотвод (ливнёвка/кюветы), зимнюю уборку, охрану.

    Мини-чек-лист перед покупкой

    1. ЕГРН на участок: право, границы, обременения.
    2. ПЗЗ/ЗОУИТ: отступы, высота, охранные зоны.
    3. Коммуникации: статус электросетей (ТУ/мощность), вода/канализация, связь.
    4. Выезд: подъезды, рельеф, УГВ, соседи, шум/экология.

    FAQ по дачному строительству

    • Можно ли прописаться в садовом доме? После признания его жилым и присвоения адреса — да.
    • Нужен ли проект и уведомление? Для нового строительства — действует уведомительный порядок; проект помогает соблюсти ПЗЗ/отступы.
    • Работает ли «дачная амнистия»? Да, упрощённая регистрация уже построенных домов действует до 01.03.2031 при соблюдении условий.

    Обновлено: 15.08.2025. Материал носит общий характер. Конкретные регламенты зависят от муниципалитета, редакции ПЗЗ и правил вашего СНТ/ТСН.

  • Какие гарантии, что все будет сделано качественно и в срок?

    Коротко: качество и сроки фиксируем в договоре и календарном графике, работы принимаются поэтапно с актами и фотоотчётами, применяем сертифицированные материалы и соблюдаем ПЗЗ/СП. На конструктив и инженерку действует гарантия, на задержку по нашей вине — договорная неустойка. Все условия прозрачны до старта.

    Что фиксируем в договоре

    • Состав и объём работ (спецификация и ведомости объёмов).
    • Календарный график с контрольными точками (этапы: фундамент → коробка/кровля → инженерия → «под отделку»/«под ключ»).
    • Смета с привязкой к этапам и правила индексации (если применимо).
    • Неустойка/штрафы за нарушение сроков по нашей вине (формулировка и размер — в договоре).
    • Гарантийные обязательства и порядок сервисного обслуживания.

    Гарантии качества

    • Конструктив (фундамент, стены, кровля) — гарантийный срок, как правило, до 3 лет.
    • Инженерные системы (электрика, отопление, ВК) — до 2 лет при штатной эксплуатации.
    • Отделка — по договору (обычно до 2 лет на работы; на материалы действует заводская гарантия).
    • Все сроки и объём покрытия конкретизируются в вашем договоре (для отдельных материалов — по паспорту производителя).

    Контроль и приёмка работ

    • Акты скрытых работ с фотофиксацией (гидроизоляция, армирование, утепление, инженерные трассы).
    • Промежуточные приёмки на этапах: фундамент, коробка/кровля, инженерные сети, черновые поверхности.
    • Исполнительная документация: паспорта и сертификаты материалов/оборудования, протоколы испытаний (опрессовка, электролаборатория*), исполнительные схемы.
    • Фото- и видеоотчёты в общий чат проекта (по графику).
    • *Наличие специфических испытаний уточняется сметой и ТЗ.

    Материалы и технологии

    • Используем сертифицированные материалы, соответствующие проекту и климатической зоне.
    • Соблюдаем технологические карты и регламенты монтажа производителей.
    • По запросу — замена брендов с эквивалентными характеристиками и письменным согласованием.

    Сроки: как обеспечиваем выполнение

    • Календарный график с контрольными датами и буфером на погодные риски.
    • План снабжения: раннее бронирование длинных позиций (кровля, окна, инженерия).
    • Резерв бригад на критические этапы и перераспределение ресурсов при необходимости.
    • Процедура Change Request — любые изменения по вашей инициативе оформляются допсоглашением с влиянием на стоимость/срок.

    Финансы: прозрачные платежи

    • Оплата по факту этапа: подписали акт — оплатили и идём дальше.
    • Большие закупки — по спецификации с предоставлением накладных/счетов.
    • При предоплате материалов — фиксируем перечень, объём, цену и место хранения.

    Если сроки сдвигаются

    • При нашей вине — срабатывают условия по неустойке/штрафам и корректирующий план.
    • При форс-мажоре/задержках по внешним сетям/изменениям проекта — сроки корректируются допсоглашением (все причины и новые даты фиксируем письменно).

    Как работает гарантия

    • Заявка в сервис (чат/почта/телефон) с фото и описанием дефекта.
    • Диагностика и согласование способа устранения (ремонт/замена узла).
    • Сроки реакции и устранения — прописаны в регламенте сервиса (указываются в договоре и приложении).
    • Гарантия распространяется на наши работы и поставленные нами материалы/оборудование при нормальной эксплуатации.

    Что не покрывается гарантийно

    • Нарушение условий эксплуатации/самовольные изменения конструкций или инженерии.
    • Повреждения из-за внешних факторов: затопление, пожар, просадка грунта вне проектных допусков, скачки напряжения и т.п.
    • Износ расходников и сервисное обслуживание, не входящее в гарантию производителя.

    Что необходимо со стороны заказчика

    • Обеспечить доступ на участок и временные условия (подъезд, хранение, электропитание/генератор — при необходимости).
    • Своевременно согласовывать изменения и принимать этапы по графику.
    • Соблюдать регламенты эксплуатации дома и инженерных систем.

    Мини-чек-лист перед стартом

    1. Договор + график + смета + спецификация материалов.
    2. План контроля: акты скрытых работ, фотоотчёты, порядок приёмки.
    3. Гарантийные сроки и сервисный регламент в приложениях.
    4. Правила изменений (Change Request) и условия неустойки.

    Совет: запросите у менеджера образец договора с приложениями (график, смета, регламент качества) — это даст полное понимание сроков, состава работ и гарантий до внесения аванса.

    Обновлено: 15.08.2025. Конкретные сроки, размеры неустойки и гарантийные периоды закрепляются в вашем договоре и могут отличаться в зависимости от технологии и комплектации.

Остались вопросы?

Заполните форму, задайте свой вопрос, и наш сотрудник свяжется с Вами, чтобы подробно на него ответить.

ДРУГИЕ ПРЕДЛОЖЕНИЯ

Одноэтажные компактные дома
product

Проект Дольче 135 м2

7,8 млн ₽

Габариты: 10,000 х 13,500

icon-school Школа
icon-school Лес
icon-school Ж/Д станция
icon-school Детский сад
icon-school Остановка
icon-school Аптека
icon-school Водоем
icon-school Церковь
icon-school Магазин
icon-school Детская площадка
Для большой семьи
product

Проект Престиж 249

8,9 млн ₽
icon-school Школа
icon-school Лес
icon-school Ж/Д станция
icon-school Детский сад
icon-school Остановка
icon-school Аптека
icon-school Водоем
icon-school Церковь
icon-school Магазин
icon-school Детская площадка
Для большой семьи
product

Проект Престиж 198 м2

8,5 млн ₽

Габариты: 10 300 х 9 000

icon-school Школа
icon-school Лес
icon-school Ж/Д станция
icon-school Детский сад
icon-school Остановка
icon-school Аптека
icon-school Водоем
icon-school Церковь
icon-school Магазин
icon-school Детская площадка
Дома среднего размера
product

Проект Марсель 156 м2

7,8 млн ₽
icon-school Школа
icon-school Лес
icon-school Ж/Д станция
icon-school Детский сад
icon-school Остановка
icon-school Аптека
icon-school Водоем
icon-school Церковь
icon-school Магазин
icon-school Детская площадка
Для большой семьи
product

Проект Манчестер 246 м2

10,3 млн ₽

Габариты: 14 800 х 11 900

icon-school Школа
icon-school Лес
icon-school Ж/Д станция
icon-school Детский сад
icon-school Остановка
icon-school Аптека
icon-school Водоем
icon-school Церковь
icon-school Магазин
icon-school Детская площадка
Дома среднего размера
product

Проект Торонто 146 м2

7,8 млн ₽
icon-school Школа
icon-school Лес
icon-school Ж/Д станция
icon-school Детский сад
icon-school Остановка
icon-school Аптека
icon-school Водоем
icon-school Церковь
icon-school Магазин
icon-school Детская площадка
Для большой семьи
product

Проект Марсель 203

8,7 млн ₽

Габариты: 9 800 х 10 950

icon-school Школа
icon-school Лес
icon-school Ж/Д станция
icon-school Детский сад
icon-school Остановка
icon-school Аптека
icon-school Водоем
icon-school Церковь
icon-school Магазин
icon-school Детская площадка
Проекты домов
product

Проект Ребун 130 м2

7,8 млн ₽

Габариты: 12 600 х 11 600

icon-school Школа
icon-school Лес
icon-school Ж/Д станция
icon-school Детский сад
icon-school Остановка
icon-school Аптека
icon-school Водоем
icon-school Церковь
icon-school Магазин
icon-school Детская площадка
Проекты домов
product

Проект Ребун 121 м2

7,2 млн ₽

Габариты: 11 000 х 12 600

icon-school Школа
icon-school Лес
icon-school Ж/Д станция
icon-school Детский сад
icon-school Остановка
icon-school Аптека
icon-school Водоем
icon-school Церковь
icon-school Магазин
icon-school Детская площадка
Проекты домов
product

Проект Пегас 125 м2

7,6 млн ₽

Габариты: 11 700 х 13 700

icon-school Школа
icon-school Лес
icon-school Ж/Д станция
icon-school Детский сад
icon-school Остановка
icon-school Аптека
icon-school Водоем
icon-school Церковь
icon-school Магазин
icon-school Детская площадка
Проекты домов
product

Проект Дольче 197 м2

9,0 млн ₽

Габариты: 12 600 х 17 700

icon-school Школа
icon-school Лес
icon-school Ж/Д станция
icon-school Детский сад
icon-school Остановка
icon-school Аптека
icon-school Водоем
icon-school Церковь
icon-school Магазин
icon-school Детская площадка
Проекты домов
product

Проект Дольче 167 м2

8,2 млн ₽

Габариты: 11 700 х 15 000

icon-school Школа
icon-school Лес
icon-school Ж/Д станция
icon-school Детский сад
icon-school Остановка
icon-school Аптека
icon-school Водоем
icon-school Церковь
icon-school Магазин
icon-school Детская площадка
Проекты домов
product

Проект Дольче 153 м2

8,0 млн ₽

Габариты: 10 800 х 14 400

icon-school Школа
icon-school Лес
icon-school Ж/Д станция
icon-school Детский сад
icon-school Остановка
icon-school Аптека
icon-school Водоем
icon-school Церковь
icon-school Магазин
icon-school Детская площадка
Дома среднего размера
product

Проект Дольче 139 м2

7,8 млн ₽

Габариты: 11 100 х 13 500

icon-school Школа
icon-school Лес
icon-school Ж/Д станция
icon-school Детский сад
icon-school Остановка
icon-school Аптека
icon-school Водоем
icon-school Церковь
icon-school Магазин
icon-school Детская площадка
Дома среднего размера
product

Проект Дольче 133 м2

7,4 млн ₽

Габариты: 12 600 х 11 400

icon-school Школа
icon-school Лес
icon-school Ж/Д станция
icon-school Детский сад
icon-school Остановка
icon-school Аптека
icon-school Водоем
icon-school Церковь
icon-school Магазин
icon-school Детская площадка
Проекты домов
product

Проект Дивный 134 м2

6,7 млн ₽

Габариты: 9 900 х 13 600

icon-school Школа
icon-school Лес
icon-school Ж/Д станция
icon-school Детский сад
icon-school Остановка
icon-school Аптека
icon-school Водоем
icon-school Церковь
icon-school Магазин
icon-school Детская площадка
Проекты домов
product

Проект Дивный 130,5 м2

7,5 млн ₽

Габариты: 9,600 х 13.600

icon-school Школа
icon-school Лес
icon-school Ж/Д станция
icon-school Детский сад
icon-school Остановка
icon-school Аптека
icon-school Водоем
icon-school Церковь
icon-school Магазин
icon-school Детская площадка
Одноэтажные компактные дома
product

Проект Брайер 87 м2

5,6 млн ₽

Габариты: 10 200 x 7 200

icon-school Школа
icon-school Лес
icon-school Ж/Д станция
icon-school Детский сад
icon-school Остановка
icon-school Аптека
icon-school Водоем
icon-school Церковь
icon-school Магазин
icon-school Детская площадка
Проекты домов
product

Проект Брайер 146 м2

7,0 млн ₽

Габариты: 10 200 x 7 200

icon-school Школа
icon-school Лес
icon-school Ж/Д станция
icon-school Детский сад
icon-school Остановка
icon-school Аптека
icon-school Водоем
icon-school Церковь
icon-school Магазин
icon-school Детская площадка
Проекты домов
product

Проект Дивный 113 м2

5,8 млн ₽

Габариты: 10 200 x 7 200

icon-school Школа
icon-school Лес
icon-school Ж/Д станция
icon-school Детский сад
icon-school Остановка
icon-school Аптека
icon-school Водоем
icon-school Церковь
icon-school Магазин
icon-school Детская площадка
Проекты домов
product

Проект Дивный 121,5 м2

6,2 млн ₽

Габариты: 10 200 x 7 200

icon-school Школа
icon-school Лес
icon-school Ж/Д станция
icon-school Детский сад
icon-school Остановка
icon-school Аптека
icon-school Водоем
icon-school Церковь
icon-school Магазин
icon-school Детская площадка

ZEMBERY — ПРО ЗАБОТУ

Узнать больше о компании

Компания "Зембери" основана профессионалами в сфере недвижимости 
с большим опытом работы на земельном рынке Москвы и Подмосковья.

Cпециалисты нашей компании обладают внушительным личным стажем более 10 лет работы в сфере продажи земельных участков. В общей сложности реализовали более 100 успешных проектов, зарекомендовав себя на рынке как надежные профессионалы своего дела.

Компания Зембери работает без посредников. Мы не приветствуем лишние накрутки и желание нажиться на клиенте. Мы помогаем вам найти место, где вам и вашим близким будет комфортно.

  • about-icon
    более 5 000 участков
  • about-icon
    опыт 10 лет в сфере
  • about-icon
    реализовано 40 проектов
Узнать больше о компании
Посмотреть все статьи